注意:访问本站需要Cookie和JavaScript支持!请设置您的浏览器! 打开购物车 查看留言付款方式联系我们
初中电子 单片机教材一 单片机教材二
搜索上次看见的商品或文章:
商品名、介绍 文章名、内容
首页 电子入门 学单片机 免费资源 下载中心 商品列表 象棋在线 在线绘图 加盟五一 加入收藏 设为首页
本站推荐:
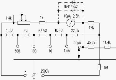
500型多用表的小改进
文章长度[713] 加入时间[2006/7/1] 更新时间[2026/1/31 21:34:31] 级别[3] [评论] [收藏]


2003年,第11期,类别:电子技校


    笔者所购AF-500型多用表,其价格不贵,表中所用元件有的需作更换,以使其可靠性更好。
    1. 加装保护二极管
    该表所附电路图中,表头应有两只保护二极管,但实际并未装上,故在使用中表头线圈易被烧坏。加装保护二极管并不难,按附图虚线所示加装即可,二极管可用1N4148型的。
    2. 更换两只电阻
    该表直流500mA挡和100mA挡的分流电阻的阻值分别为1.5Ω和6Ω,这两只电阻均为1/8W的。据计算,其功率偏小,其中1.5Ω电阻承受功耗达0.375W,6Ω电阻承受功耗达0.06W。
    因此,可将1.5Ω电阻用1W的高精度电阻更换;6Ω电阻用1/2W的高精度电阻更换。
    经以上改进后,使用起来更加放心、可靠。

                                     山东  田连华



 

1、 本站不保证以上观点正确,就算是本站原创作品,本站也不保证内容正确。
2、如果您拥有本文版权,并且不想在本站转载,请书面通知本站立即删除并且向您公开道歉! 以上可能是本站收集或者转载的文章,本站可能没有文章中的元件或产品,如果您需要类似的商品请 点这里查看商品列表!
本站协议 | 版权信息 |  关于我们 |  本站地图 |  营业执照 |  发票说明 |  付款方式 |  联系方式
深圳市宝安区西乡五壹电子商行——粤ICP备16073394号-1;地址:深圳西乡河西四坊183号;邮编:518102
E-mail:51dz$163.com($改为@);Tel:(0755)27947428
工作时间:9:30-12:00和13:30-17:30和18:30-20:30,无人接听时可以再打手机13537585389